

| INFORMAZIONI TECNICHE | |
|---|---|
| Portata aria (mc/h) | 250 |
| Pressione statica utile (pa) | 100 |
| DATI PER SINGOLO VENTILATORE | |
| Potenza nominale (W) | 50 |
| Giri (1/min) | 4320 |
| I nominale (A) | 0,46 |
| Tensione (V) | 230 |
| Frequenza (Hz) | 50 |
| Velocità (nr) | 3+(1 booster) |
| FILTRI | |
| Efficienza | G4 ISO COARSE > 65 % |
| Efficienza | F7 ISO e PM1 > 65 % |
| Identificativo del modello e opzioni installate | ERHDB25SKCE + EBERB4BRF | ERHDB25SKCE + EARBRHRF / EARBCO2RF | ERHDB25SKCE + EARBRHRF / EARBCO2RF Locali | ||||||
|---|---|---|---|---|---|---|---|---|---|
| Clima di riferimento | Temperato | Freddo | Caldo | Temperato | Freddo | Caldo | Temperato | Freddo | Caldo |
| SEC in [kWh/(m²a)] per ogni tipo di clima (temperato, caldo, freddo) | -34,16 | -73,26 | -11,77 | -37,12 | -77,38 | -14,06 | -40,62 | -82,44 | -16,67 |
| SEC Class | A | A+ | E | A | A+ | E | A | A+ | E |
| Tipologia dichiarata dell'unità di ventilazione | UVR-B Bidirezionale | UVR-B Bidirezionale | UVR-B Bidirezionale | ||||||
| Tipo di azionamento installato | Azionamento a velocità multiple | Velocità variabile | Velocità variabile | ||||||
| Tipo di sistema di recupero del calore | a recupero | a recupero | a recupero | ||||||
| Efficienza termica ¹ | 74,5 | 74,5 | 74,5 | ||||||
| Portata massima in [m³/h] ² | 160 | 160 | 160 | ||||||
| Potenza elettrica complessiva massima portata [W] | 60 | 60 | 60 | ||||||
| Livello di potenza sonora (LWA) in [dB(A)] ³ | 39 | 39 | 39 | ||||||
| Portata di riferimento in [m3/h] 4 | 112 | 112 | 112 | ||||||
| Differenze di pressione di riferimento [Pa] | 50 | 50 | 50 | ||||||
| SPI in [W/m³/h] 5 | 0,21 | 0,21 | 0,21 | ||||||
| Fattore di controllo e tipologia | 1 | 0,85 | 0,65 | ||||||
| Percentuale massima di trafilamento interno [%] 6 | 1,2 | 1,2 | 1,2 | ||||||
| Percentuale massima di trafilamento esterno [%] 6 | 2,5 | 2,5 | 2,5 | ||||||
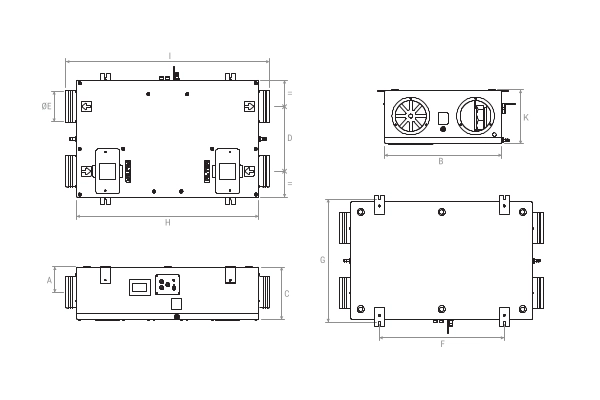
| A | B | C | D | ØE | F | G | H | I | K | |
|---|---|---|---|---|---|---|---|---|---|---|
| mm | 125 | 580 | 260 | 320 | 156 | 617 | 609 | 900 | 1005 | 268 |
| Modello | EARB4BRF | EARBRHRF | EARBCO2RF | EARBMODBUSRF | EARBAPPRF | EARBDSPRF | EARBTSMART |
|---|---|---|---|---|---|---|---|
![]() | ![]() | ![]() | ![]() | ![]() |
![]() | ![]() | |
| Controllo velocità | • | • | • | • | • | • | |
| By-pass | • | • | |||||
| Intasamento filtri | • | • | • | • | • | • | |
| Controllo umidità | • | • | |||||
| Controllo CO2 | • | • | |||||
| Funzione booster | • | • | • | • | • | • | |
| Trasmettitore MODBUS | • | ||||||
| Impostazione velocità | • | • | • | • | |||
| ON/OFF | • | • | • | • | |||
| Allarmi puntuali | • | • | • | • | • | ||
| € | incluso nel prezzo | 252,30 € | 530,88 € | 306,79 € | 371,31 € | 276,75 € | 798,15 € |
| Modello | Descrizione | € |
|---|---|---|
| ERHDB25ASKH | 2.507,11 € | |
| ERHDB25ASKHBE* | 2.932,96 €* | |
| EARBF60A | Kit filtri ricambio (2 pz) efficienza G4 | 67,91 € |
| EAKFF7482025 | Filtro ricambio efficienza F7 | 70,64 € |