

| INFORMAZIONI TECNICHE | |
|---|---|
| Portata aria (mc/h) | 320 |
| Pressione statica utile (pa) | 100 |
| DATI PER SINGOLO VENTILATORE | |
| * Potenza nominale (W) | 83 |
| Giri (1/min) | 3200 |
| * I nominale (A) | 0,75 |
| Tensione (V) | 230 |
| Frequenza (Hz) | 50 |
| Velocità (nr) | 3+(1 booster) |
| FILTRI | |
| Efficienza | G4 ISO COARSE > 65 % |
| Efficienza | F7 ISO e PM1 > 65 % |
| Identificativo del modello e opzioni installate | ERHDB40SK + EARB4BRF | ERHDB40SK + EARBRHRF / EARBCO2RF | ERHDB40SK + EARBRHRF / EARBCO2RF locali | ||||||
|---|---|---|---|---|---|---|---|---|---|
| Clima di riferimento | Temperato | Freddo | Caldo | Temperato | Freddo | Caldo | Temperato | Freddo | Caldo |
| SEC in [kWh/(m²a)] per ogni tipo di clima (temperato, caldo, freddo) | -34,08 | -77,35 | -9,29 | -37,62 | -81,42 | -12,52 | -41,58 | -86,11 | -16,07 |
| SEC Class | A | A+ | F | A | A+ | E | A | A+ | E |
| Tipologia dichiarata dell'unità di ventilazione | UVR-B Bidirezionale | UVR-B Bidirezionale | UVR-B Bidirezionale | ||||||
| Tipo di azionamento installato | Azionamento a velocità multiple | Velocità variabile | Velocità variabile | ||||||
| Tipo di sistema di recupero del calore | a recupero | a recupero | a recupero | ||||||
| Efficienza termica ¹ | 88,2 | 88,2 | 88,2 | ||||||
| Portata massima in [m³/h] ² | 320 | 320 | 320 | ||||||
| Potenza elettrica complessiva massima portata [W] | 175 | 175 | 175 | ||||||
| Livello di potenza sonora (LWA) in [dB(A)] ³ | 48 | 48 | 48 | ||||||
| Portata di riferimento in [m3/h] 4 | 224 | 224 | 224 | ||||||
| Differenze di pressione di riferimento [Pa] | 50 | 50 | 50 | ||||||
| SPI in [W/m³/h] 5 | 0,34 | 0,34 | 0,34 | ||||||
| Fattore di controllo e tipologia | 1 | 0,85 | 0,65 | ||||||
| Percentuale massima di trafilamento interno [%] 6 | 2,1 | 2,1 | 2,1 | ||||||
| Percentuale massima di trafilamento esterno [%] 6 | 1,9 | 1,9 | 1,9 | ||||||
| SEC Clima temperato (kWh energia elettrica/anno) | 471 | 352 | 225 | ||||||
| AHS (kWh energia primaria/anno) | 4.525 | 8.851 | 2.046 | 4.581 | 8.962 | 2.071 | 4.656 | 9.109 | 2.105 |
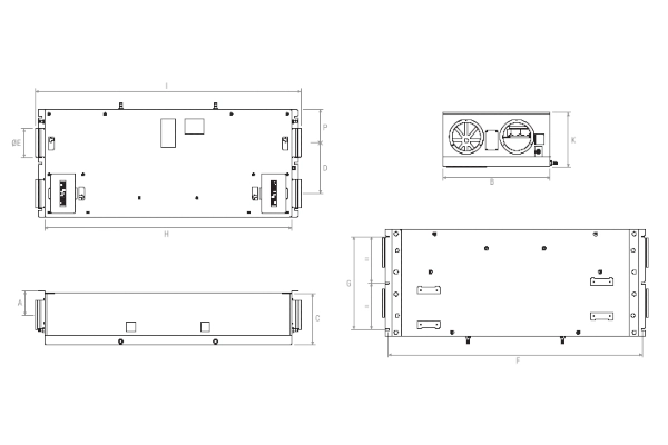
| A | B | C | D | E | F | G | H | ØI | J | K | |
|---|---|---|---|---|---|---|---|---|---|---|---|
| mm | 129 | 578 | 277 | 271 | 156 | 1367 | 500 | 1330 | 1431 | 291 | 180 |
| Modello | EARB4BRF | EARBRHRF | EARBCO2RF | EARBMODBUSRF | EARBAPPRF | EARBDSPRF | EARBTSMART |
|---|---|---|---|---|---|---|---|
![]() | ![]() | ![]() | ![]() | ![]() |
![]() | ![]() | |
| Controllo velocità | • | • | • | • | • | • | |
| By-pass | • | • | |||||
| Intasamento filtri | • | • | • | • | • | • | |
| Controllo umidità | • | • | |||||
| Controllo CO2 | • | • | |||||
| Funzione booster | • | • | • | • | • | • | |
| Trasmettitore MODBUS | • | ||||||
| Impostazione velocità | • | • | • | • | |||
| ON/OFF | • | • | • | • | |||
| Allarmi puntuali | • | • | • | • | • | ||
| € | incluso nel prezzo | A.R. | A.R. | A.R. | A.R. | A.R. | A.R. |
| Modello | Descrizione | € |
|---|---|---|
| ERHDB40ASK | A.R. | |
| ERHDB40ASKE* | A.R.* | |
| ERHDB40ASKBE** | A.R.** | |
| ERHDB40ASKEBE*** | A.R.*** | |
| EARBF62A | Kit filtri ricambio (2 pz) efficienza G4 | A.R. |
| EAKFF7482025 | Filtro ricambio efficienza F7 | A.R. |